DMC

Detailed design
Budapest XIII.
On site – 2019
19 300 m2
DMC International Kft. - Budapest
Vadász és Társai / Töreky Építész Stúdió Kft.
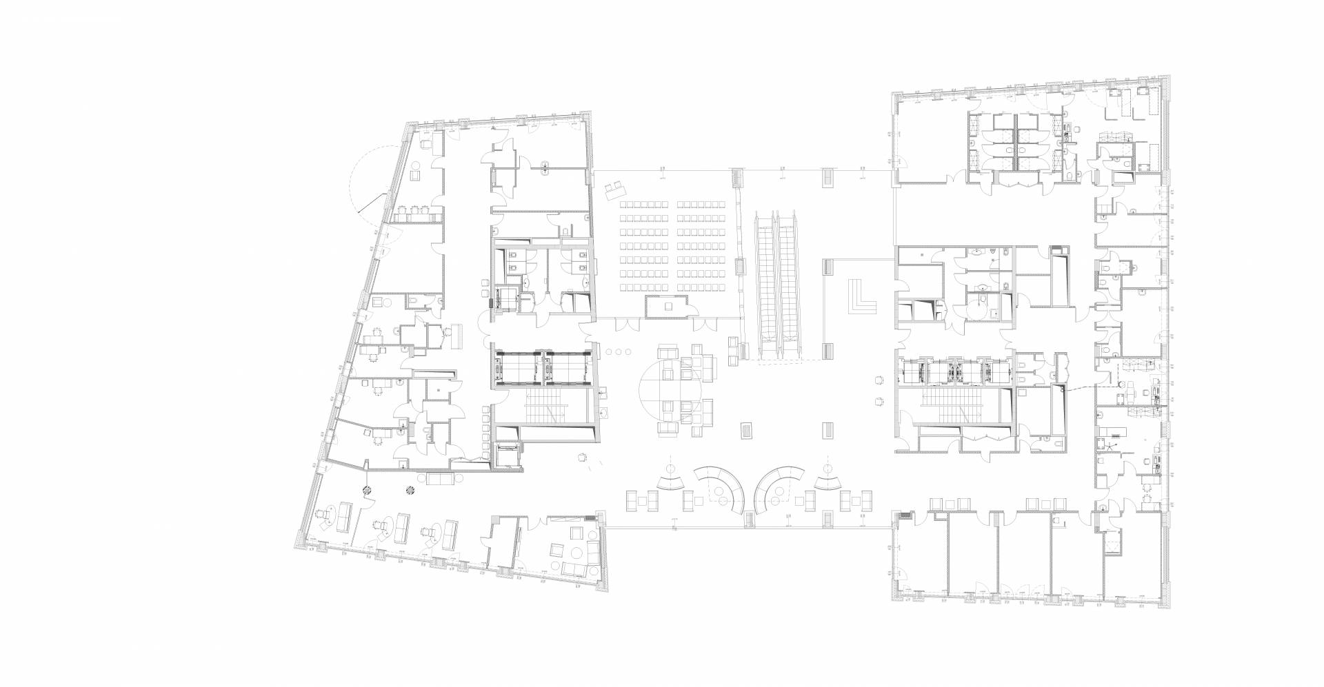
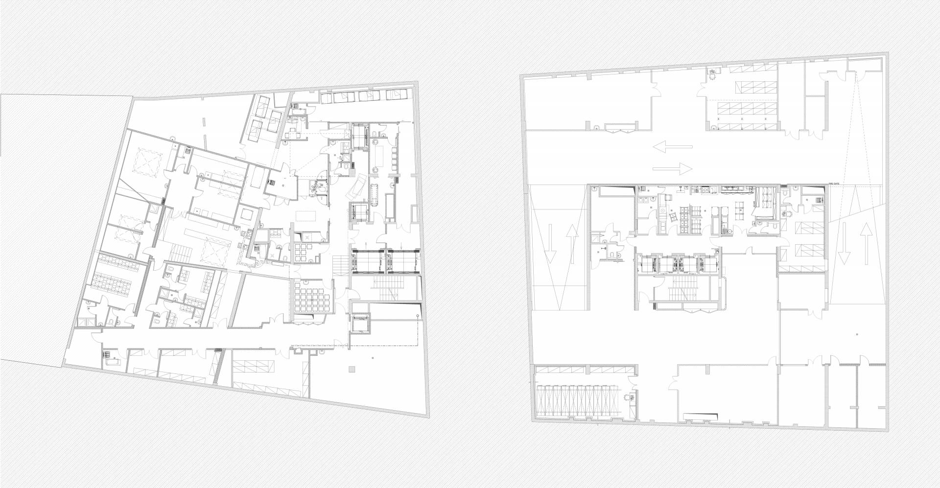
The Duna Medical Center is one of the best equipped private health care facilities in Hungary, staffed by internationally recognized experts dedicated to the health of their patients.
The office building of the Medical Center is situated in Budapest at the southern part of the Danube riverbank in the middle of one of last decade's biggest regional developement and investment project in the Hungarian capital city called Millenium Quarter. The Medical Center moves its headquarters into a newly built medical and office building on one of the Quarter's last empty building plot.
The ZED architect studio was to deliver construction drawings and detail designs cooperating with fellow architect designers, co-designing engineers and also with medical technology experts and professionals and  technical specialists.