JSF
													
													Architecture
												
																																				
													
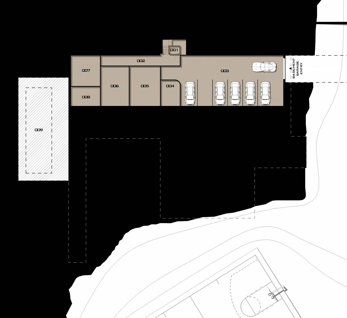
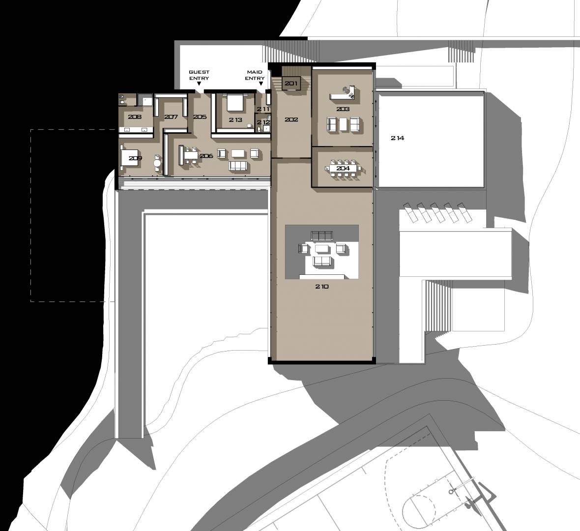
													Budapest XII.
												
																																				
													
													Full planning achieved
												
																																				
													
													1 700 m2
												
																																				
													
													private
												
																																				
													
													ZED
												
																																															 
							 
			 
			 
			 
			 
			 
			 
			