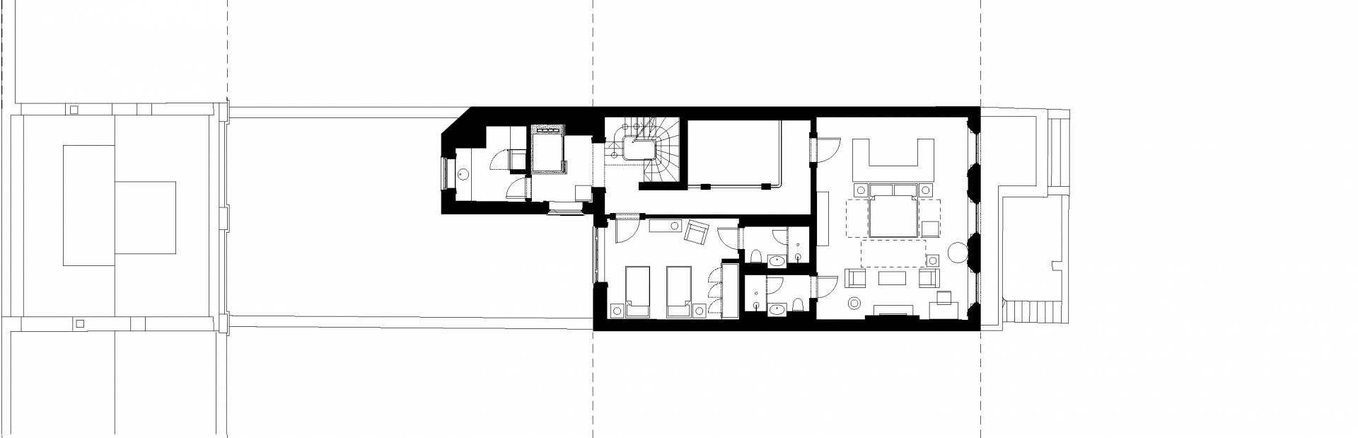
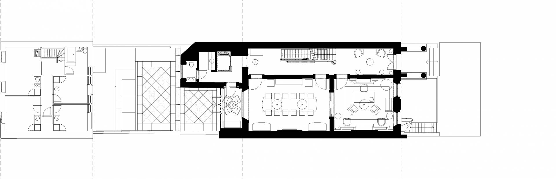
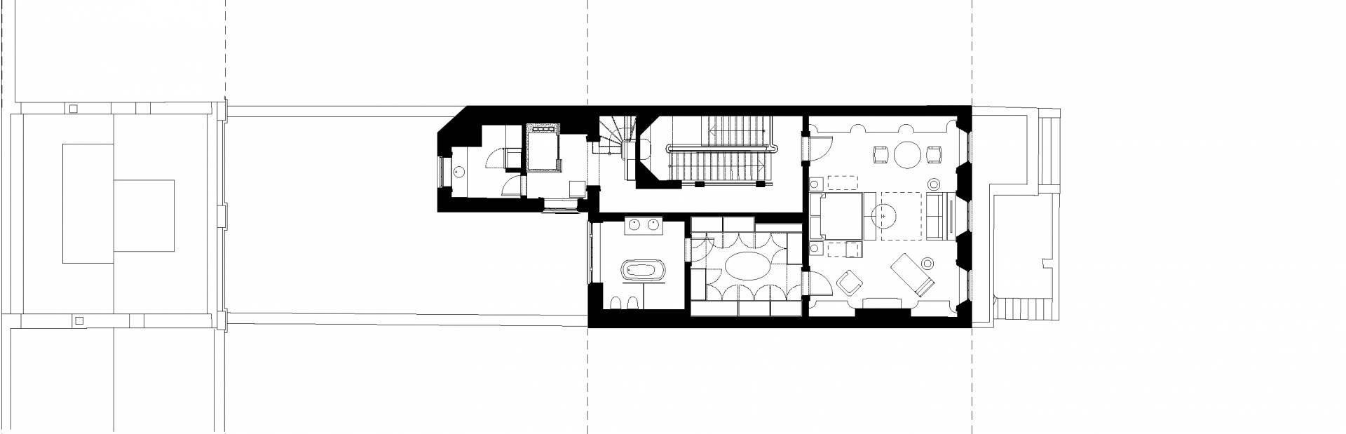
LoM

Interior design, Bim, Detailed design
London, UK
Completed – 2017
950 m2
Rietveld Architects, New York
ZED
ZED