MaHa

Bim, Detailed design
The Hague
On site
3 000 m2
Rietveld Architects
ZED
ZED

Collaboration with a 20-person New York City architectural firm.

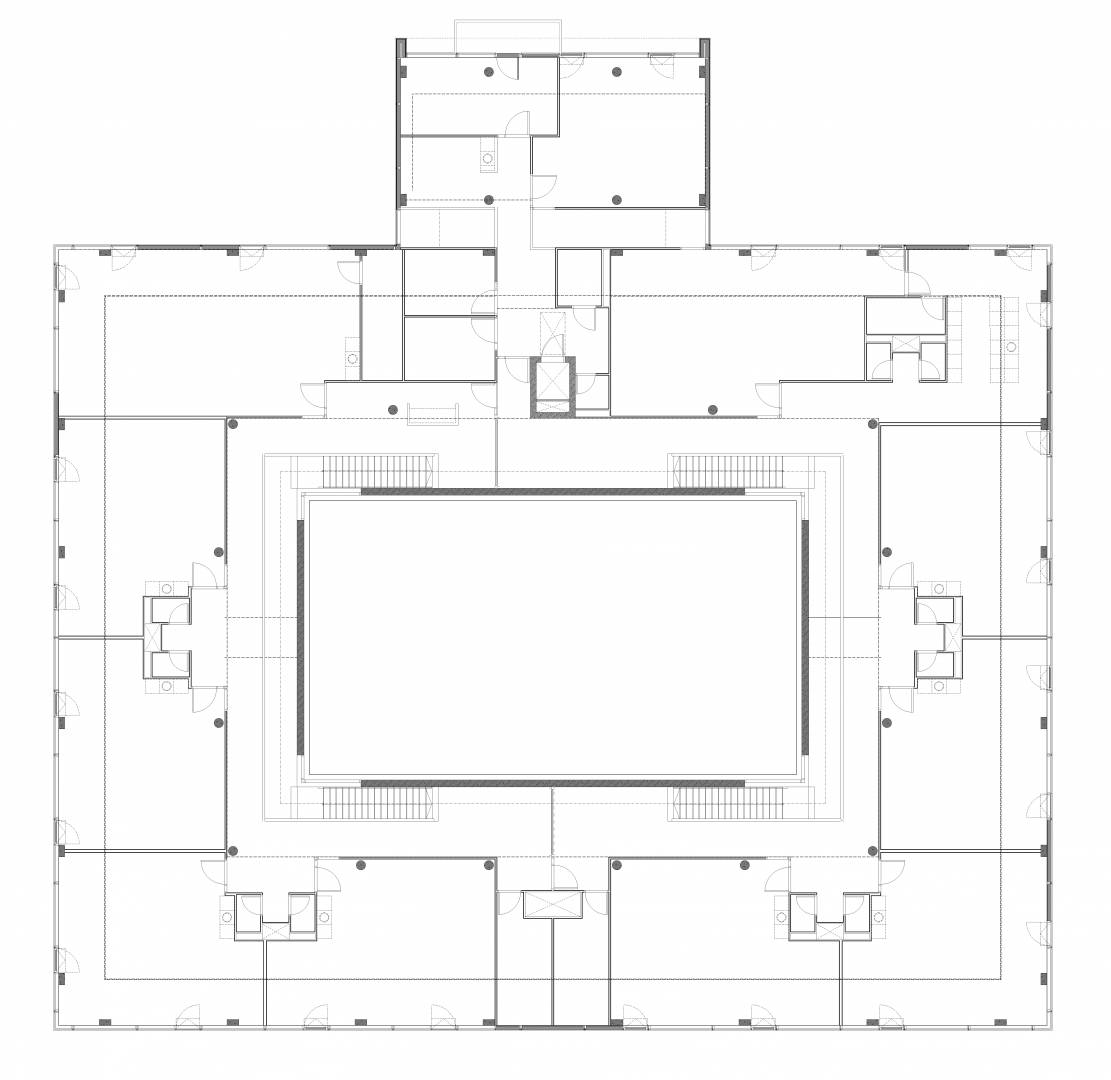
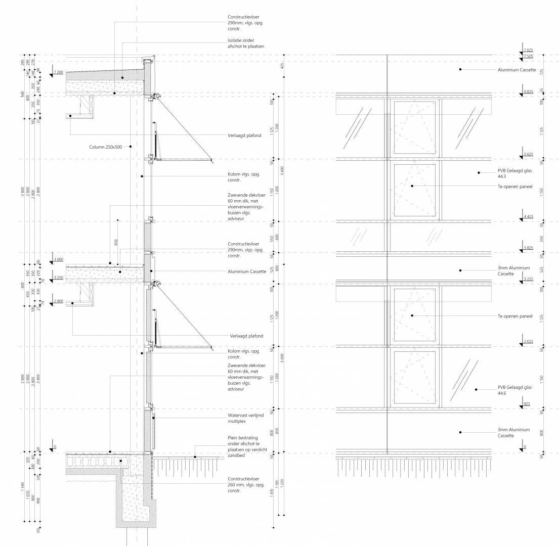
BIM support for a school project planned for The Hague in the Netherlands. Development and documentation for the drawing parts of the design phases: from sketch design to construction plans.