MP7

Detailed design
Budapest XIII.
Full planning achieved
5 350 m2
Marina Part Promenade Kft
Promega Kft.
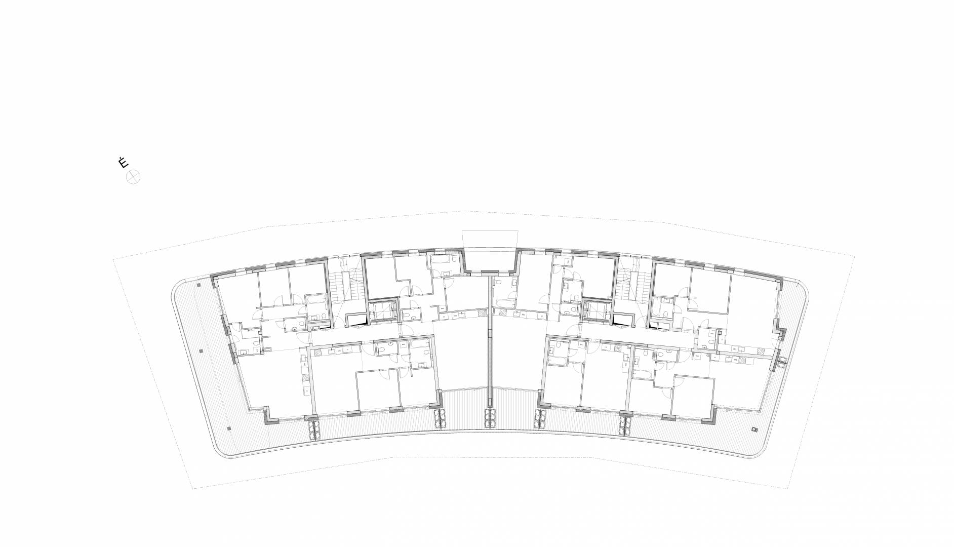
Marina Bay is one of the capital's biggest development area with dozens of high standard apartment buildings with direct connection to the picturesque Bay and river Danube's northern riverside. Duna Terasz is one of the latest bay-side project on the shore of the river at Marina Bay Budapest, Hungary.
The neo-modernist building, designed by an international team will focus on maximum convenience with smart home functions. The exciting staggered forms of the apartment houses with white ledges overhanging the façades harbours ergonomic apartments and generous terraces with a panoramic view over the Danube and Buda hills. The entire façade is dominated by huge glass surfaces that ensure well-lit interior spaces.
ZED Studio was to deliver construction and detail drawings of the 2 buildings.