P32

Architecture
Balatonfüred
Full planning achieved
485 m2
Tima Zoltán, KÖZTI
ZED

Service building - reconstruction and expansion of an existing villa building with a new part of a building

 

In the second half of 2019, our architectural office received an invitation to design the buildings of the "Katti Zoob Fashion Collection and Creative House" project, which will be created on two independent plots and buildings in the central part of Balatonfüred (Petőfi Sándor utca 32 and Zsigmond utca 2).

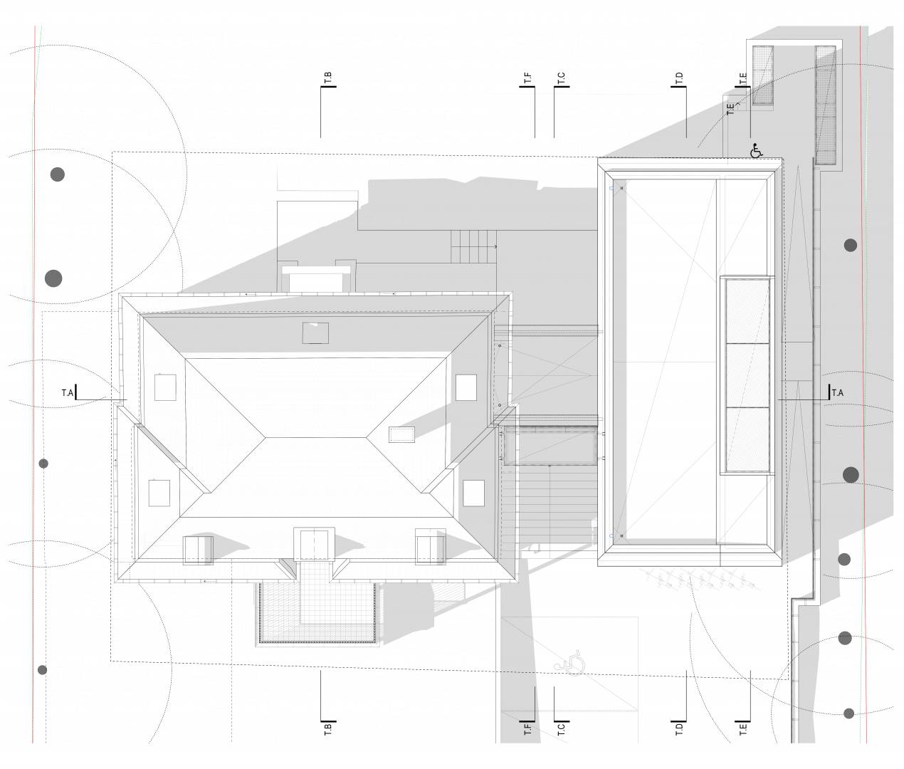
Petőfi Sándor utca 32 under - almost 100 years old - villa building has been without function in the heart of the city for years.
It was built in a historicizing, neo-baroque architectural style, with characteristically over-decorated details in some places. Its decorative, glassed-in veranda is divided by finely divided glass inserts, and there is a terrace on the first floor. It has a mansard-like roof with ornate skylights.
It was originally a residential building, most recently it operated as a restaurant. With its reconstruction and expansion, the building with the function of exhibition space and creative house can be created. In addition to the villa building, there is also an accommodation building with ground and attic levels on the plot, which will be demolished during the expansion. The buildings are currently out of use.
The purpose of the development here is to renovate and expand the villa building, and add contemporary additions in such a way that the building complex meets the functional, spatial and aesthetic requirements that match the theme of the project and serve it.

The planned community, public functions of the villa building and its extension: it is necessary to create multifunctional, variable spaces that correspond to the following functions:
• the thematic presentation of the FASHION COLLECTION, as well as the reception of related periodic guest exhibitions.
• the location of ALKOTÓHÁZ's trainings and practical sessions, where the crafts of the fashion industry can be studied through the industrial history relics of the collection.

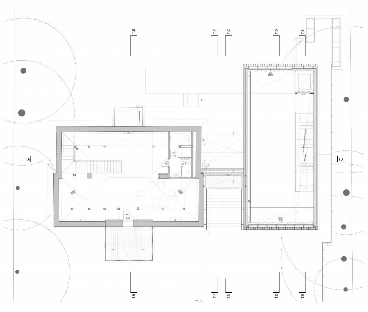
Planned space functions:
• On the basement level: washrooms, wardrobes and service functions must be provided primarily.
• On the ground floor of the villa building and on the ground floor of the contemporary addition, on the gallery level: exhibition and community space, which is also suitable for hosting small group lectures and events, as well as the location for the practical sessions of the master classes.
• It is also necessary to provide space for receiving visitors (reception area, arrival, ticket exchange location, where the museum shop function should also be located - the latter does not require a separate room)
• Floor: fashion history library, tools and equipment collection, archive.
• Garden: recreational functions, possible extended outdoor exhibition space.