BSK

Bim, Kiviteli tervezés
Budapest V.
Kivitelezés alatt – 2020
3 500 m2
Közti Zrt. - Budapest
KÖZTI - Skardelli Műterem
ZED
ZED

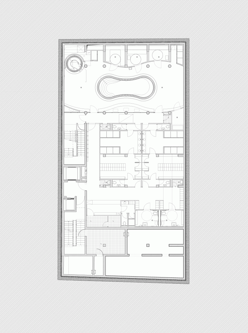
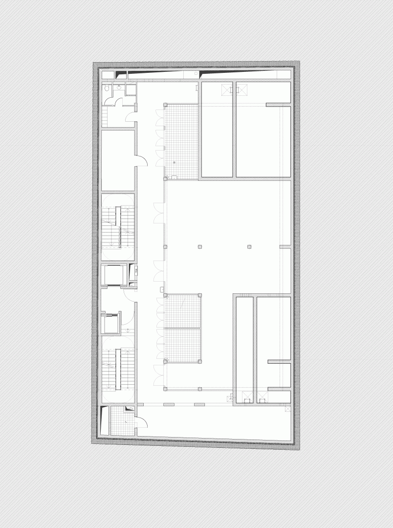
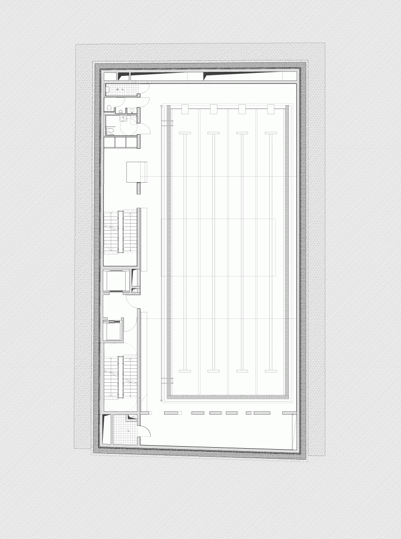
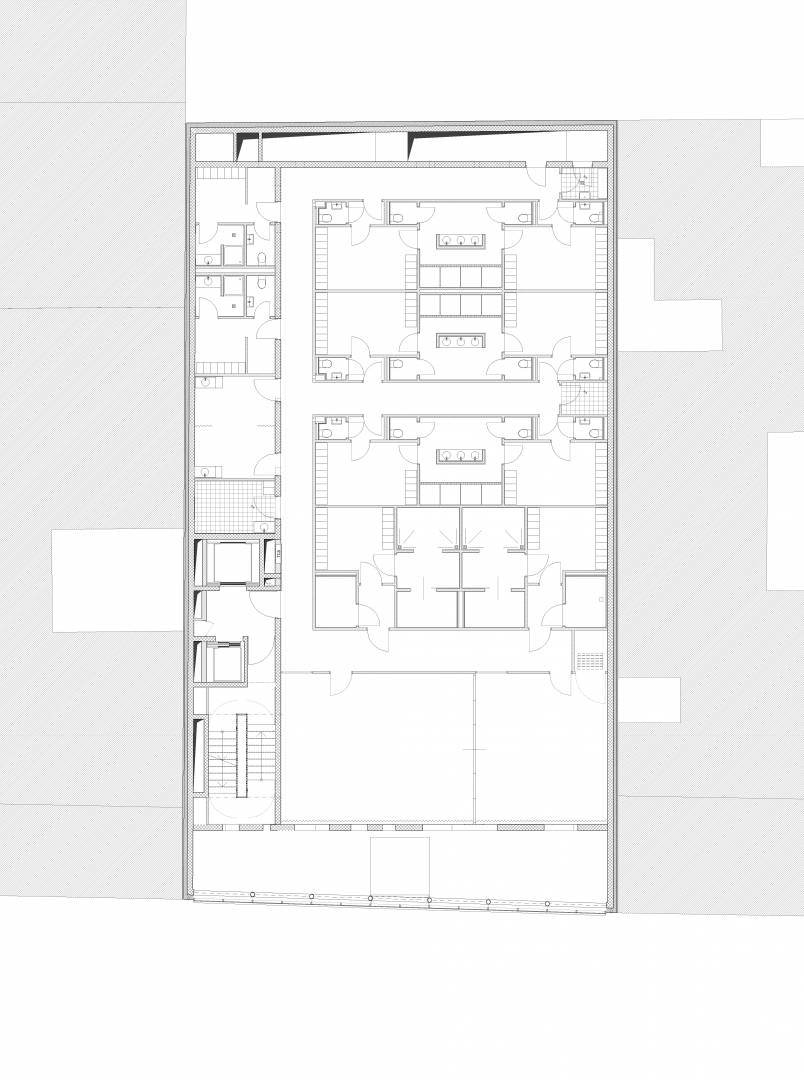
Belvárosi Sportközpont