NLT

Bim, Kiviteli tervezés
Budapest XIII.
Kivitelezés alatt – 2019
22 500 m2
Mérték Építészeti Stúdió Kft.
ZED
ZED

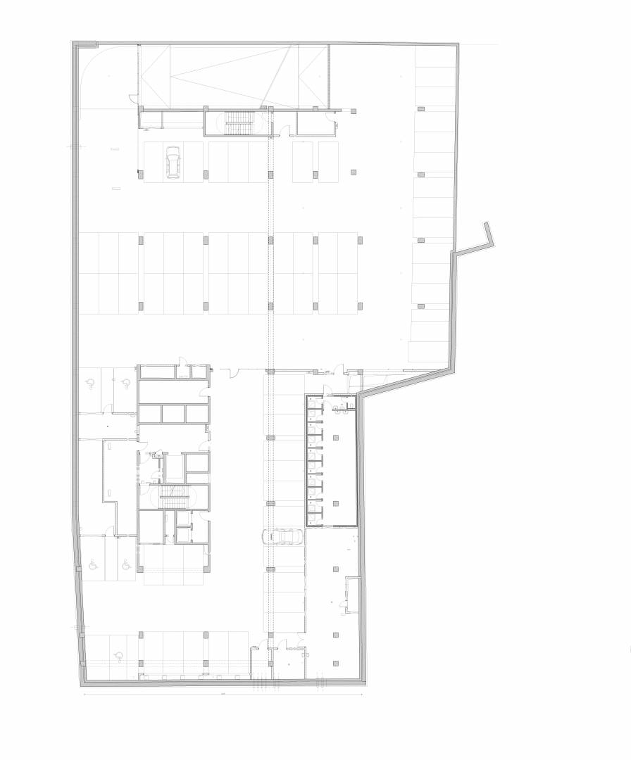
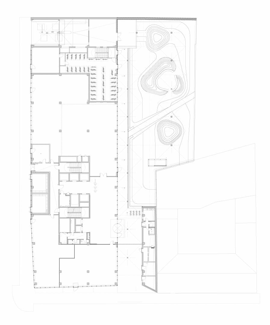
Nordic Light Offices TrioAz épület a Nordic Light irodaház folytatásaként, annak 3. ütemében épül, építészeti minőségében a meglévő épületegyüttes színvonalát követi. Elsődleges tervezői szándék volt a kontinuitás, amiben a meglévő épületegyüttes értékeit emelték át és értelmezték újra az új ütemben a tervezők. Az előző ütemben épült irodaház külső homlokzatának erős horizontális karaktere folytatódik a Visegrádi utcai homlokzaton is, ugyanakkor a függönyfalas rendszer helyett az új épületen a kertből kivetülő sávablakos homlokzat jelenik meg.  A meglévő épületegyüttes egyik legfőbb értéke a a passzázsokon át megközelíthető kert. Az épület felső két szintje visszalépcsőzik, az így kialakuló teraszról nagyszerű kilátás nyílik a Budai hegyekre.  Irodánk az eredeti tervezőkkel együttműködve a kiviteli tervek elkészítésében vett részt.