Semilab

Építészet
Budapest XI.
Terv
1 000 m2
Semilab Zrt. - Budapest
ZED

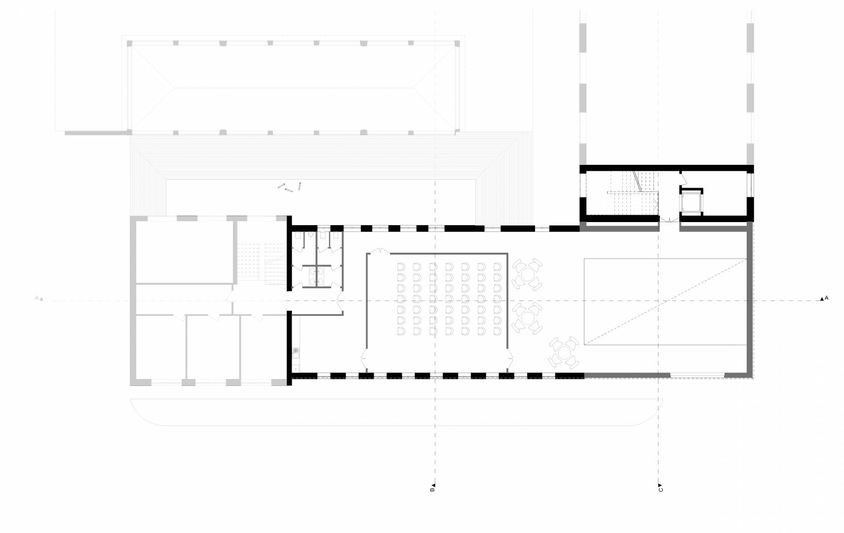
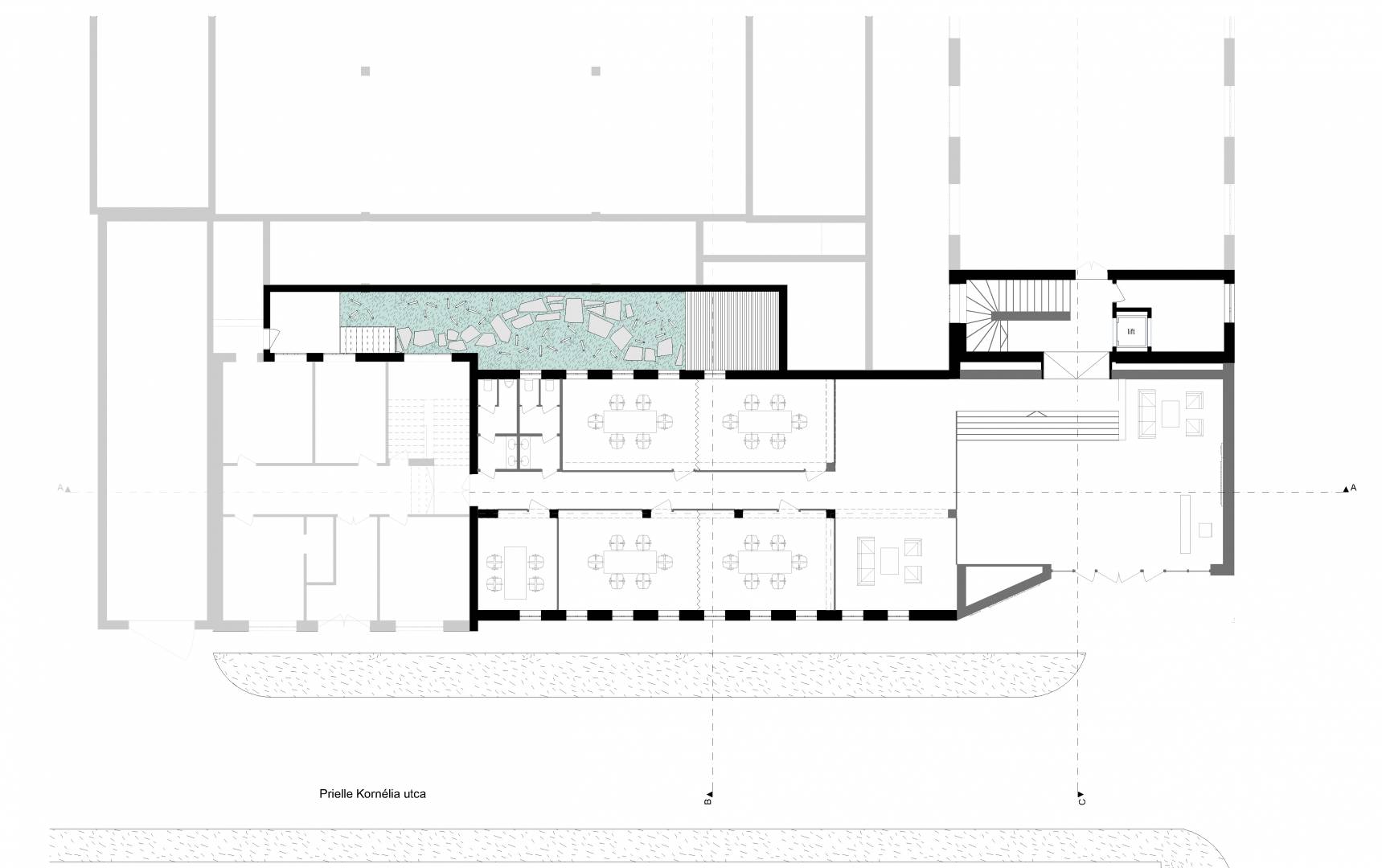
A tervezési feladat a Prielle Kornélia utca 2. szám alatt található épületegyüttes fogadóépületének az átalakítása volt.
A cél egy olyan terv elkészítése volt, mely biztosítani tudja a cég részéről megfogalmazott funkcionális és esztétikai szempontokat. A legfontosabb szempont az volt, hogy a jelenleg földszint plusz egy szintes tömeget optikailag megnöveljük, legalább 3-4 szintesnek tűnjön, miközben a szintterületi mutató nem változik. Ennek érdekében a bejárati traktus fölötti födémeket elbontjuk, egy nagy belmagasságú teret alkotva. A meglévő homlokzatok a megrendelő kérésére új klinkertégla burkolatot kapnak, a megemelt attika falakkal együtt. Az új fogadóteret is magába foglaló épületrészre antracit szerelt fémburkolat kerül, vízszintes sávos kialakítással, melynek alapkarakterét plasztikus külső és belső síkjainak váltakozása adja. A meglévő és tervezett épületszárnyak tetején tetőteraszt alakítunk ki, ami az irodai dolgozók számára a kertet helyettesítené a mindennapokban. A tetőterasz paravánfala a két rétegű, síkú rakási módnak köszönhetően a belső sík elhagyásával áttört, átlátható felületet alkot, így egyszerre alkot nyitott és egyszerre intim lehatárolást az utca és udvar felé egyaránt.