V41

Bim, Kiviteli tervezés
Budapest XIII.
Kivitelezés alatt – 2019
12 800 m2
Mérték Építészeti Stúdió Kft.
ZED
ZED

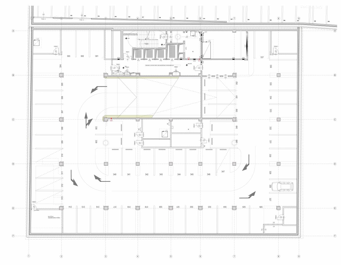
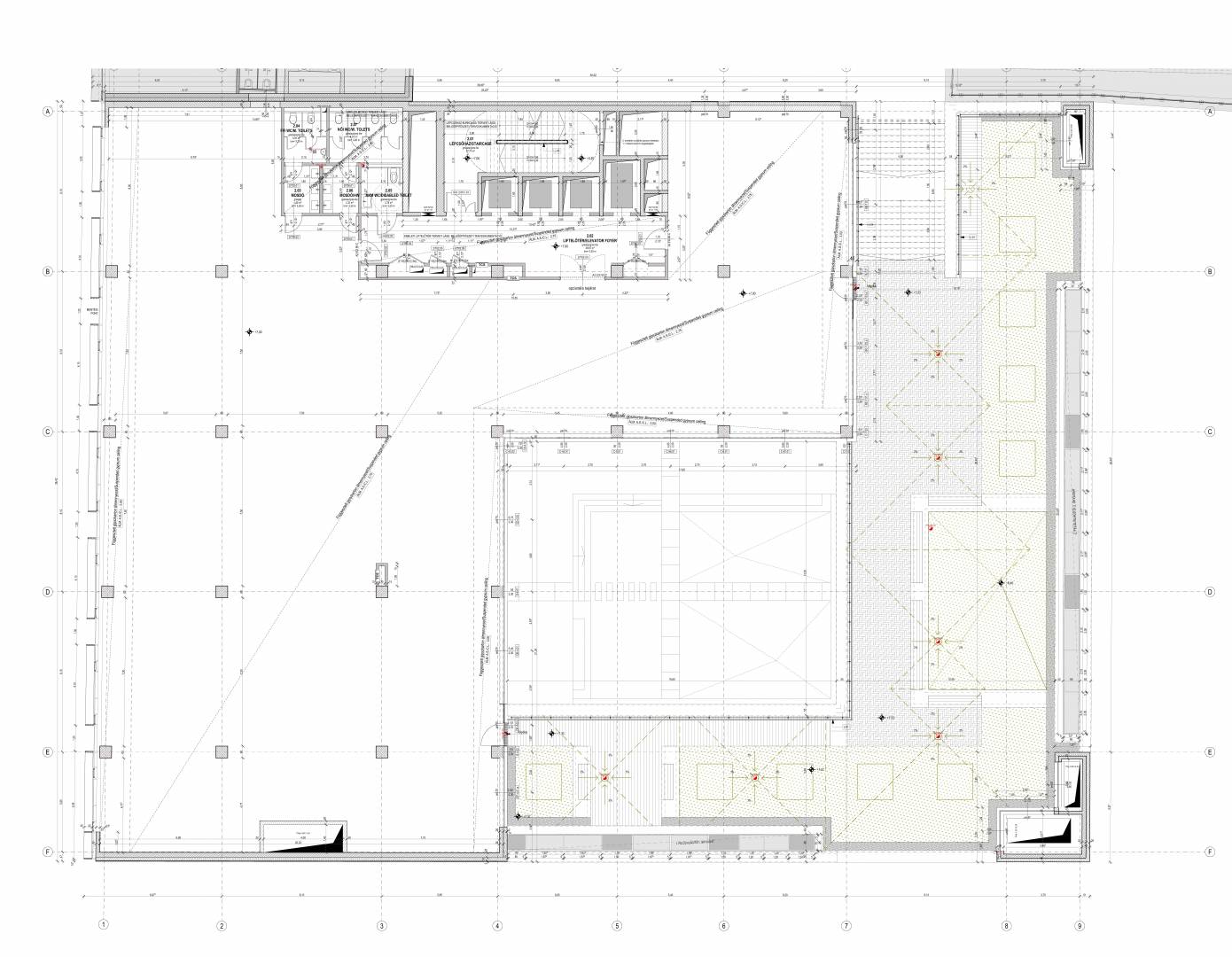
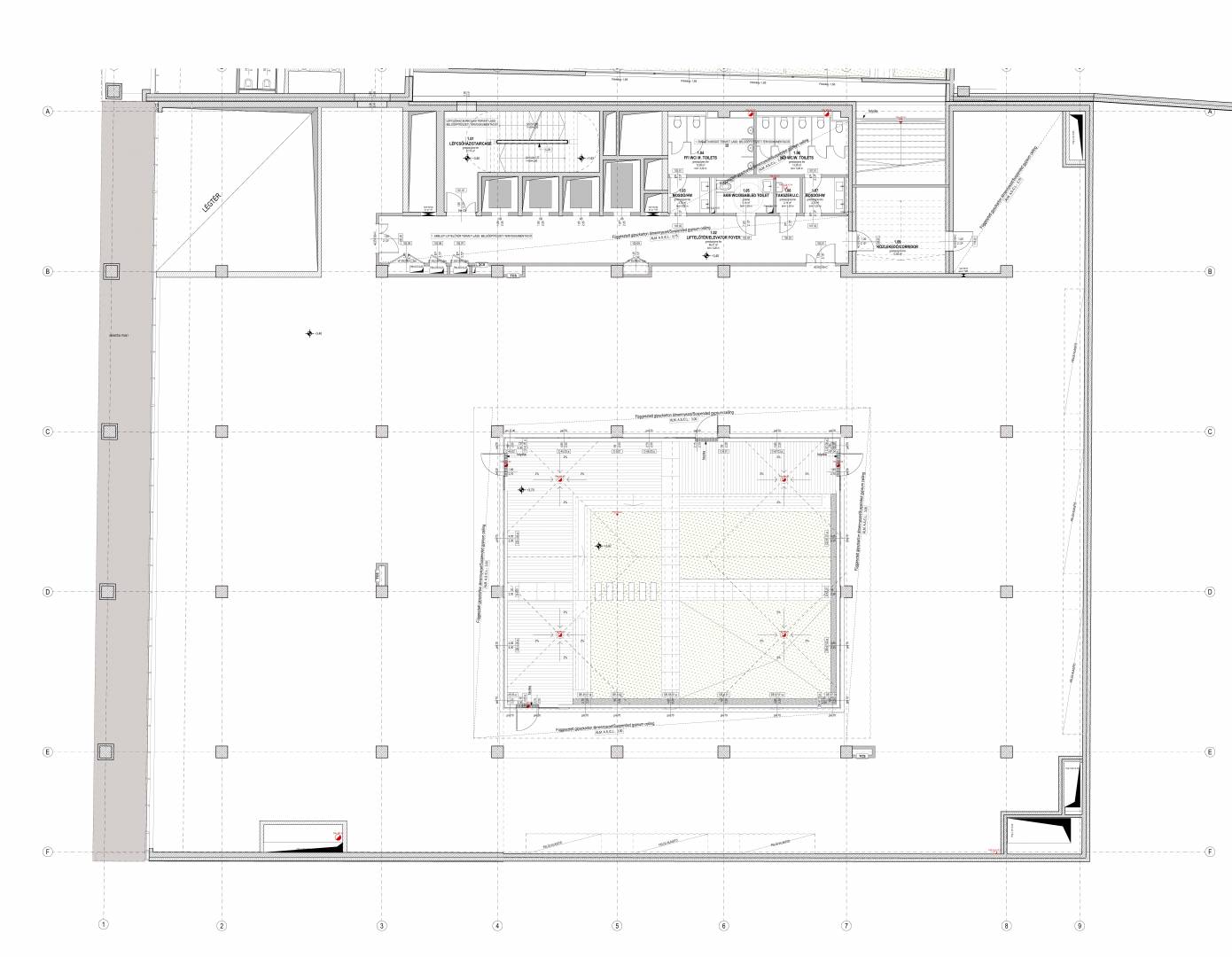
Az Advance Tower II. irodaház shell and core és fit out kiviteli terveit a Paulinyi-Reith & Partners (volt Mérték) irodájával együttműködve készítettük el.

A Futureal Kft. és K1 Ingatlanfejlesztő, ingatlanhasznosító és Szolgáltató Kft. megbízásából, a szomszédos, Váci út 43. alatt már kivitelezés alatt álló irodaház II. ütemeként szólt a megrendelés, azzal azonos arculattal, homlokzati megjelenéssel. A tervezés kitért arra megrendelői igényre is, hogy a két irodaházban a későbbi használat során az összenyithatóság, közös kerthasználati lehetőség is biztosítva legyen. Az irodaház a BREAM környezet- és energiatudatos épületminősítő rendszer szerinti Very Good fokozat elérésére törekszik. Ennek megfelelően az épület és a telek kialakítása során kiemelt szerepet kapott a környezettudatosság.