MOL

Bim, Detailed design
Tiszaújváros
Ongoing project – 2020
4 000 m2
KÉSZ Zrt., ZED
ZED
ZED
MOL Petrochemicals Ltd.  is Hungary's biggest and one of its kind in petroleum and oil refinery in the country. MOL Petrochemicals has been producing polymers since 1970 and the parent company itself has more than 60 years of history.
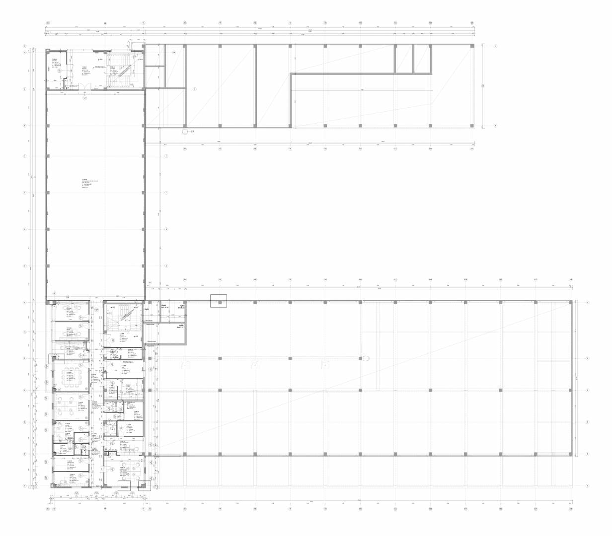
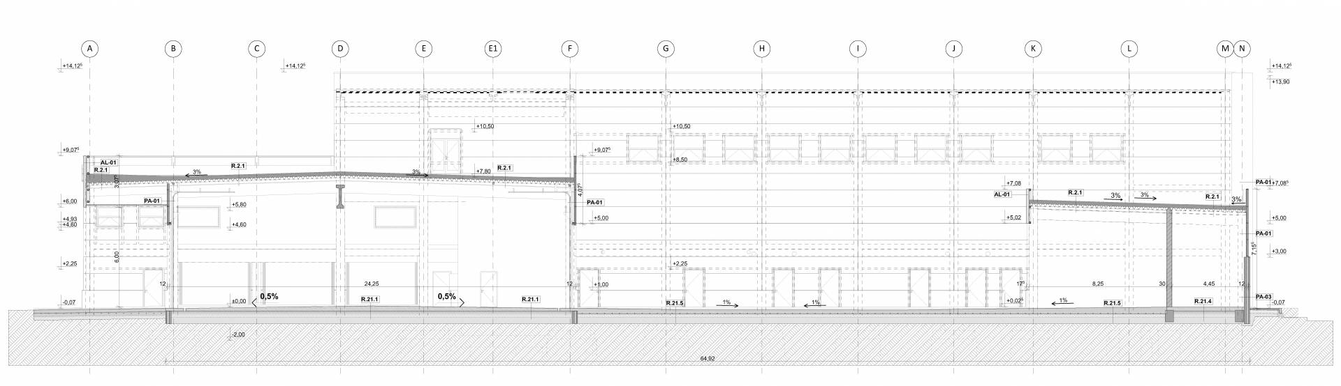
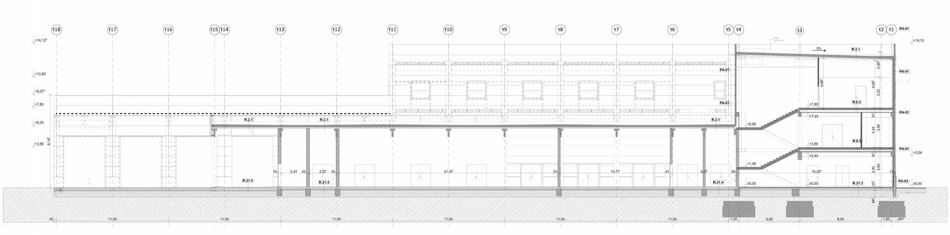
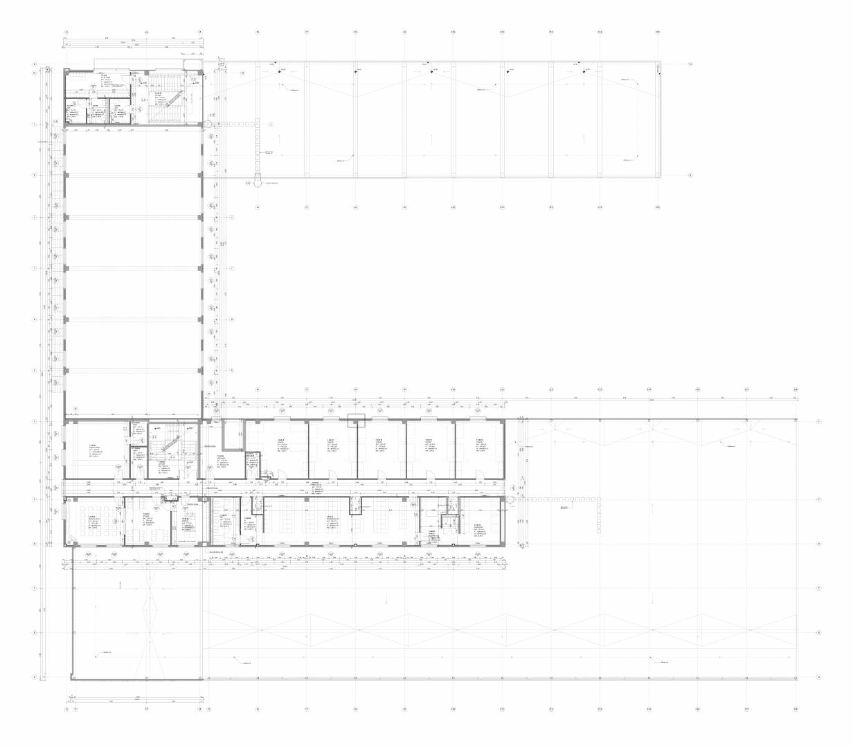
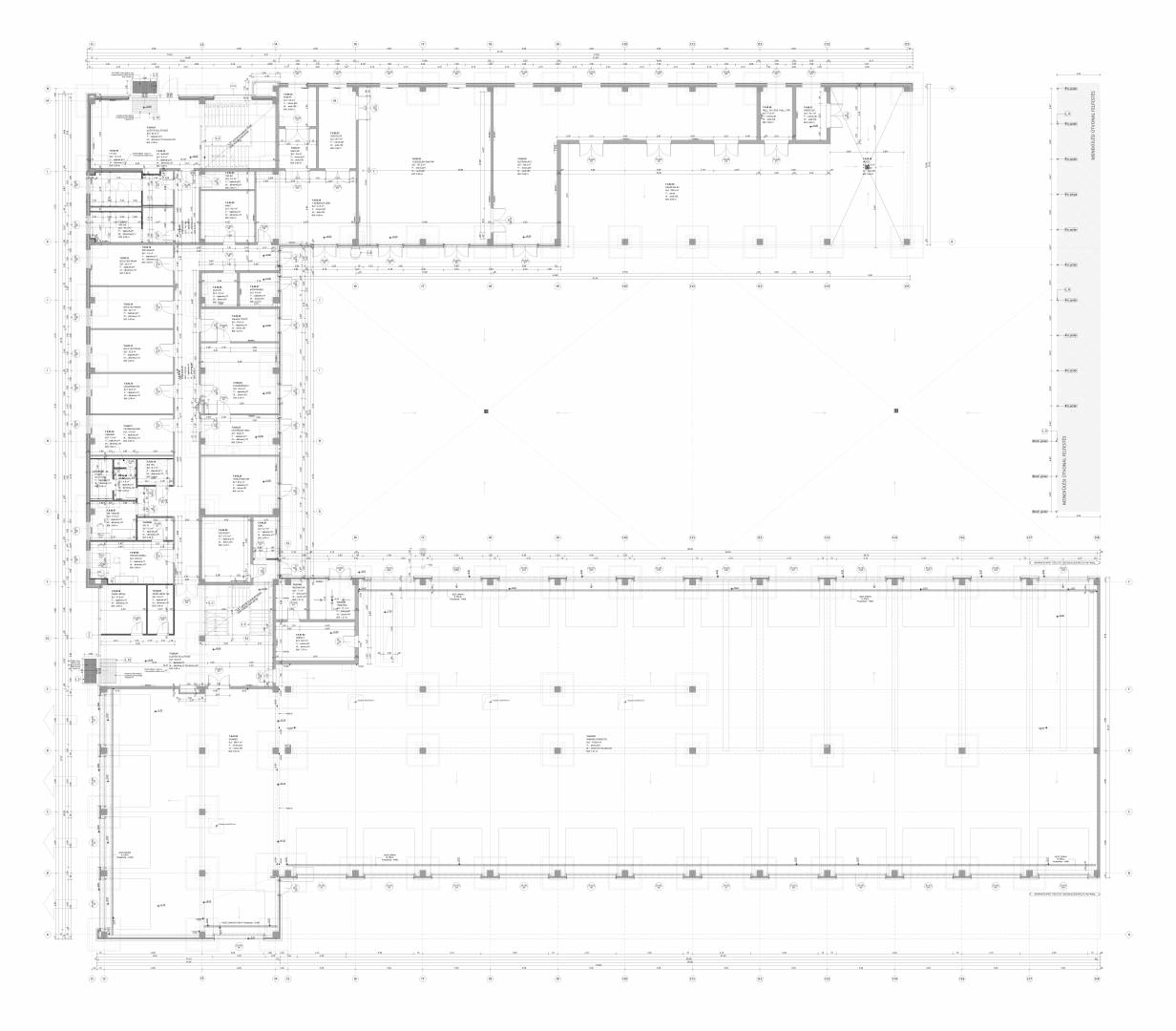
The project area is located in  MOL Petrochemicals Ltd.  industrial area. The planned building complex consists of a two-storey production hall and an associated three-story fire station. Although the buildings give a uniform appearance, they have different structure and function. ZED Studio participated throughout the whole design process in collaboration with one of  Hungary's  largest construction companies KÉSZ Group.