Uzsoki

Budapest
Terv
53 850 m2
Közti Zrt. - Budapest
KÖZTI Zrt.
KÖZTI Zrt., ZED

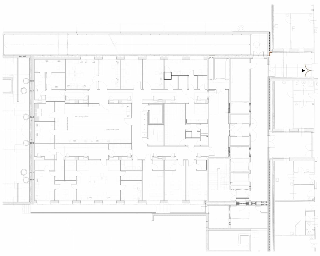
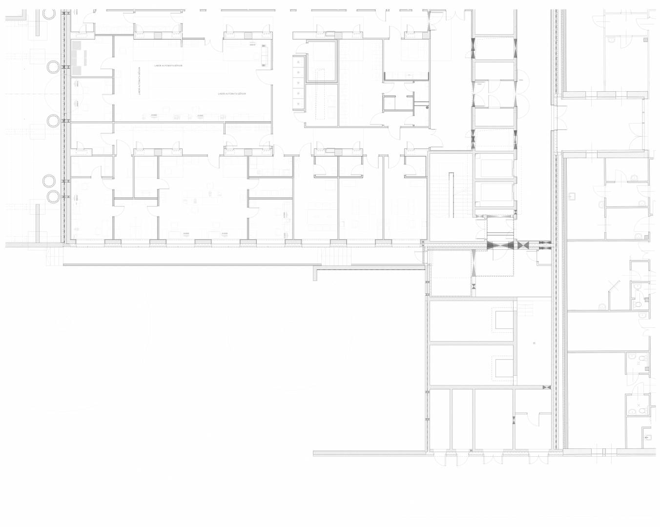
Az Uzsoki Utcai Kórház Budapest és a hozzá tartozó ellátási területek meghatározó fővárosi kórháza. A két legnagyobb épülete korszerűnek mondható, a Róna utcai Sebészeti tömb épületegyüttese újonnan épült 18 évvel ezelőtt, (2002, építész: Marosi Miklós, KÖZTI Zrt.) míg a régi főépületet 9 évvel ezelőtt újították fel. (2011, generáltervező: Építész Kaláka Kft.)

Az Egészséges Budapest Program keretében az Uzsoki Utcai Kórház felújítását és új épületekkel történő bővítését tűzték ki célul. Ez egy távlati fejlesztés lenne, mely új épületszárnyakkal, mintegy bruttó 53.850 m2 alapterülettel bővítené a meglévő kórházat. A végleges tervezési program ezt több ütemben valósítaná meg: egy olyan építészeti koncepcióval, ami már most a teljes területre egy megnyugtató, rendezett jövőképet mutat és ami biztosítja, hogy a későbbi ütemben megvalósuló épülettömbök is szervesen együtt működjenek a már meglévőkkel.

Az első ütem az UG – új belgyógyászati szárny, aminek kiviteli terveit irodánk készítette a KÖZTI partnereként.