VT5

Építészet
Budapest II.
Kivitelezés alatt – 2023
1 300 m2
ZED
ZED

Öt lakásos társasház

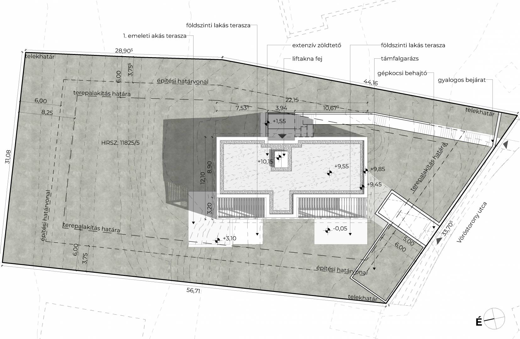
A társasház tervezési helyszíne a főváros II. kerületében a Vöröstorony utca 5. szám alatt található magántulajdonban lévő telken van, melyen jelenleg egy szabadon álló, bontandó épület áll (fsz+1. emelet+ tetőtér). A tetőtér későbbi ráépítés során került az épületre (1979), a ház eredeti építési időpontja nem ismert.

Műemléki védelem alatt nem áll, inkább jellegtelen, állapota romos, megőrzésre nem érdemes. A meglévő épületre bontási terv készült. 

Beépítés, tájolás
Az épület telken való elhelyezésénél fontos szempont volt, hogy minél nagyobb homlokzat forduljon rá minél inkább a nyugati panorámára. A nyugati oldalon az épület eltolását a telekhatártól a megfelelő méretű privát kert kialakítása befolyásolta. A harmadik legfontosabb alakító tényező pedig, hogy a lehetőségekhez képest minél több intim teraszt, kertrészt tudjunk csatolni az egyes lakásokhoz. 

Épület tömege
Az új épület közel azonos magasságú, mint az elbontásra kerülő jelenlegi épület magastetős tömege. Telken belüli pozícióját tekintve is hasonló helyen van. Az épület racionális, merőleges szerkesztésű, lapos tetős, többnyire zárt tömeget alkot, ami a nyugati homlokzaton - a panoráma felé - nyílik ki, a tömegből kihasított teraszoknak köszönhetően. 

Anyaghasználat
A külső anyaghasználat általános helyen festett világos szürke vékonyvakolat. Ez alól kivételt képeznek a kiemelt, megkülönböztetett homlokzati helyek – bejárat, erkélyek, tetőteraszok melletti homlokzati felületek. Ezek koncepciótól függően középszürke szálcement felületek vagy porszórt világos barna fémburkolatok.