Z8

Építészet
Budapest X.
Terv
22 870 m2
KÉSZ Zrt. - Budapest
ZED

Zágráb utcai társasház

Elhelyezkedés:
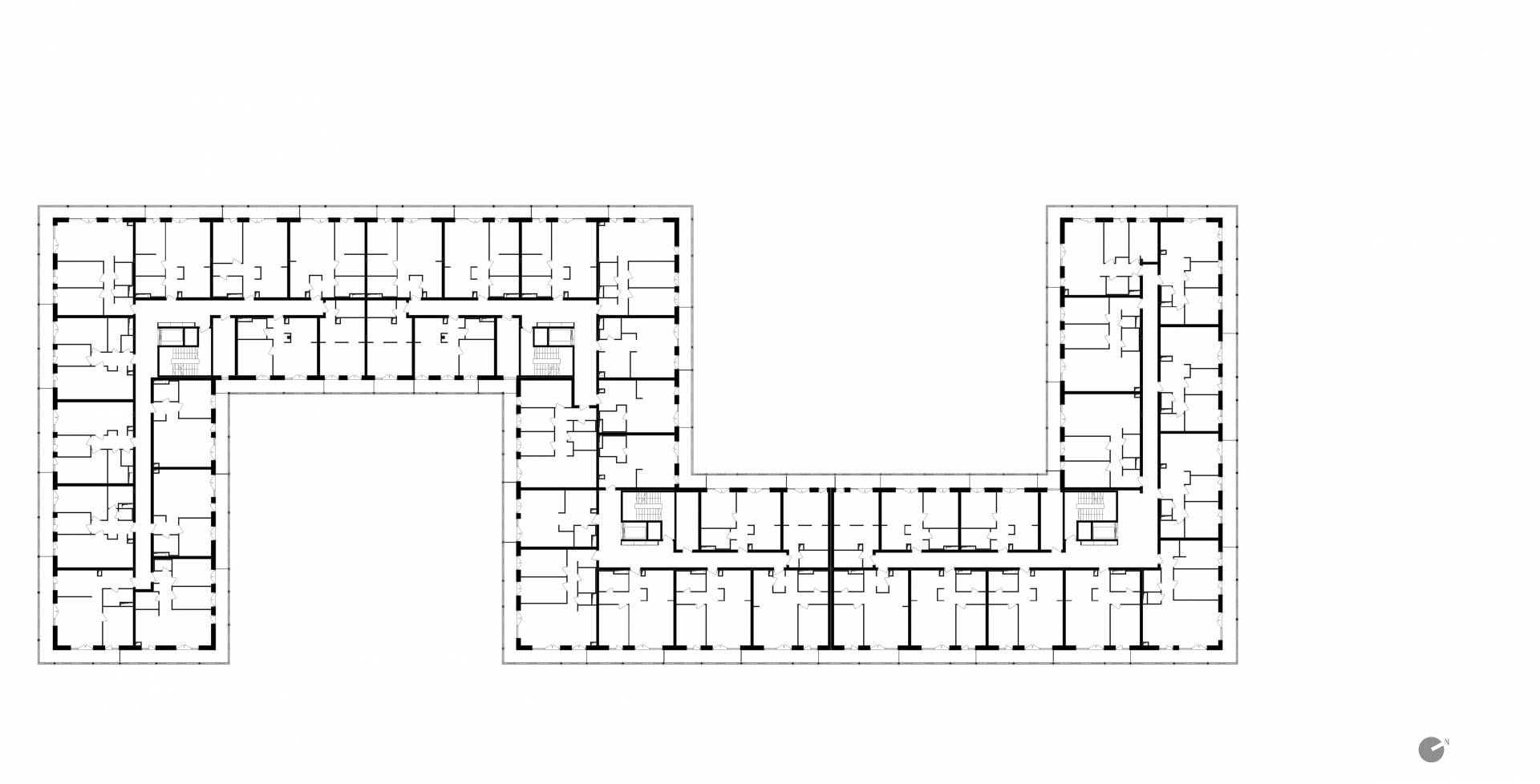
A tervezési helyszín 1107 Budapest, Zágrábi út 8. , Hrsz. : 38315/108 alatt található telek, melyen jelenleg elbontásra kerülő épületek találhatóak. Az épített környezet építészeti karaktere heterogén, a tíz emeletes panel tömbházak, négy szintes szocreál – kellemes léptékű – lakótelep és a napjainkban épült lakó együttesek veszik körbe tervezési helyszínünket. A teleknek mindössze a déli rövid oldalon van utcai kapcsolata - a Zágrábi út felől. A nyugati oldalon tömbházaktól elválasztó sétány határolja, északon a szomszédos lőtér telkéhez, keleten pedig a közeljövőben társasházi tömbökkel beépülő telekhez kapcsolódik.

Megközelítés:
Az utca felőli biztosítottuk a gyalogos és az autós megközelítést egyaránt. A gyalogos megközelítés gerince az épületen keresztülvágott és az udvarokat érintő passzázs.

Koncepció - Beépítés, tájolás:
Az utcafronthoz rövid oldalával kapcsolódó telken „S” alakban helyeztük el az épületet, melynek feltárása egy a Zágrábi utcáról induló passzázsról történik, mely az épület teljes hosszán vezet végig és kapcsolódik minden lépcsőházi bejárathoz és az tömböt tagoló belső udvarokhoz, azt körülvevő kerthez. A lakások zömmel a jól benapozott égtájak felé néznek, igyekeztünk minimalizálni az észak-keleti frontra pozícionált lakásokat.

Terepviszonyok:
A tervezési helyszín közel sík. Épület tömege, kapcsolódás a környező épületekhez. Az „S” alakú alapképlet lehetőséget biztosított arra, hogy a tervezési programban meghatározott beépítést egy határozottan tagolt és az épület léptékét is „megszelídítő” tömbbe rendezzük. Ezt az optikailag tagolt alapformát további két jellemző töréspontokban elhelyezett épülethiánnyal bontottuk humánus urbánus elemekre. Ezeken a helyeken a tagoláson túl tetőteraszok alakultak ki, melyek alacsonyabb tömege a két udvari kiteresedés benapozásában is sokat segítenek. A heterogén környezet arra sarkalt bennünket, hogy olyan alapelemekből építsük fel ezt a volumenében is meghatározó tömeget, amelyek jól funkcionáló, időtálló és ilyen mennyiségben is egyszerre semleges és izgalmas képet mutatnak, ugyanakkor nem fokozzák az épített környezet „ricsaját”.

Funkciók:
Összesen 257 lakás került az épületbe, melyek jellemzően kis közepes lakások zömmel, míg az épület legfelső szintjén, illetve néhány sarokszituációban találhatóak a nagyobb 3-4 szobás apartmanok tetőterasszal, nagy erkélyekkel. Minden lakás számára biztosítottunk erkélyt alapterülettől függetlenül, mely a homlokzat egységes képét is markánsan meghatározza. Az épületben középfolyosós a lakások feltárása. A gépészeti terek, kiszolgáló helyiségek és az utca felé kialakított bérleményi területek jellemzően a földszinten kaptak helyet, ill. a mélygarázs szinten.

Anyaghasználat:
Az épület strukturálisan két alapelemből épül fel: a fölszint és legfelső – penthouse – szint között az épületet „körbeszövő” fém hálóból, és a hozzá kapcsolódó erkélyek lemezekből, színes üveg paravánokból, valamint az alaptömegből, melyre a kerámiával burkolt átjárókon kívül nagytáblás színes szálcement burkolat került. Ez alól a záró szint kivétel, ami sötétszürke, de szintén szálcementtel burkolt tömeg, teraszokkal, kertekkel tagolt befejező elem. Az egyes strukturális tömegrészek eltérő, egymással harmonizáló színeket kaptak.